Die neue SHK Software für das moderne Handwerk
Alles, was Sie für IHRE SHK-Planung brauchen – für nur 75 € pro Monat
Grundrisse importieren oder selbst zeichnen, Bauteile per Drag & Drop setzen, Strangschemata automatisch erzeugen, Fußbodenheizungen einfach planen und Materiallisten per Klick erstellen – alles in einem Tool.
SHK-Profi –
Das steckt für Sie drin:
- Heizlastberechnung
- Konstruktions-CAD 2D
- CAD-Bodenheizung
- Symbolmanager mit SHK-Bibliothek
- Aussparungs-Modul
- Trassenplanung
- CAD-Beschriftung
Software für SHK Betriebe
Wenn Sie selbst planen, behalten Sie die volle Kontrolle. Mit MegaCAD SHK-Profi wird Planung zum echten Vorsprung. Wiederkehrende Aufgaben? Ein Kinderspiel! Heizlast berechnen, Projekte speichern, Vorlagen im Handumdrehen wiederverwenden – und schon müssen Sie nicht jedes Mal bei null anfangen.
Das heißt für Sie: schneller planen, weniger Fehler, mehr Sicherheit – und vor allem mehr Zeit für das, was wirklich zählt.
Zeit für eine Revolution im SHK-Handwerk
Für diesen Bereich müssen die externen Medien in den Cookie Einstellungen akzeptiert werden.
Cookie Einstellungen bearbeitenSHK-Profi Features – das steckt drin
Heizlastrechner
Heizlast bildet die Grundlage für die Auslegung von Heizflächen und Wärmeerzeugern. SHK-Profi unterstützt bei der Ermittlung raum- und gebäudebezogener Werte auf Basis der eingegebenen Daten.
Die Ergebnisse können in Planung, Angebot und Dokumentation übernommen werden. Übersichten und Protokolle helfen, Entscheidungen nachvollziehbar zu halten.
Konstruktions-CAD 2D
Mit dem 2D-Konstruktionsmodul zeichnen Sie Ihre Pläne schnell, sauber und präzise – ganz ohne komplizierte CAD-Erfahrung. Du erstellst Grundrisse, Leitungspläne und Schnitte im Handumdrehen. Alles ist auf den SHK-Alltag ausgelegt – damit du keine Zeit verlierst und trotzdem professionell arbeitest. Ideal, wenn’s auf der Baustelle schnell gehen muss.
CAD Commander Plus
Der CAD Commander Plus denkt mit: Du kannst typische Stränge wie Vorlauf und Rücklauf oder ganze Trassen vorkonfigurieren – und per Klick immer wieder einfügen. Abstände, Durchmesser und Zuordnungen sind automatisch korrekt. Damit bringst du System in deine Planung und sparst bei jedem Projekt wertvolle Zeit. Besonders hilfreich, wenn du in der Vorfabrikation arbeitest.
CAD-Beschriftung
Du willst saubere Pläne, die jeder sofort versteht? Mit der automatisierten Beschriftung kennzeichnest du alle Bauteile, Leitungen oder Trassen normgerecht – ohne Aufwand. Ob Maßstab, Symbole oder Texte – alles sitzt genau da, wo es hingehört. Das spart dir Rückfragen auf der Baustelle und macht einen richtig guten Eindruck beim Kunden.
CAD Symbolmanager (Bibliothek)
Im Symbolmanager findest du alles, was du brauchst: Ventile, Duschen, WC-Anlagen, Drosseln, Heizkörper – alles auf Lager. Einfach per Drag & Drop einsetzen, kombinieren, um direkt weiter zu planen. Du arbeitest mit praxisnahen Bauteilen und hast die volle Kontrolle. Kein Suchen, kein Basteln – einfach einbauen und fertig.
CAD-Aussparungen
Mit dem Modul für Aussparungen planst du realistisch und ohne Überraschungen. Ob Deckendurchbrüche, Schächte oder Wandöffnungen – du platzierst sie exakt da, wo sie hingehören. Alle Maße und Positionen sind sauber dokumentiert. Das verhindert Kollisionen und sorgt für reibungslose Abläufe mit anderen Gewerken.
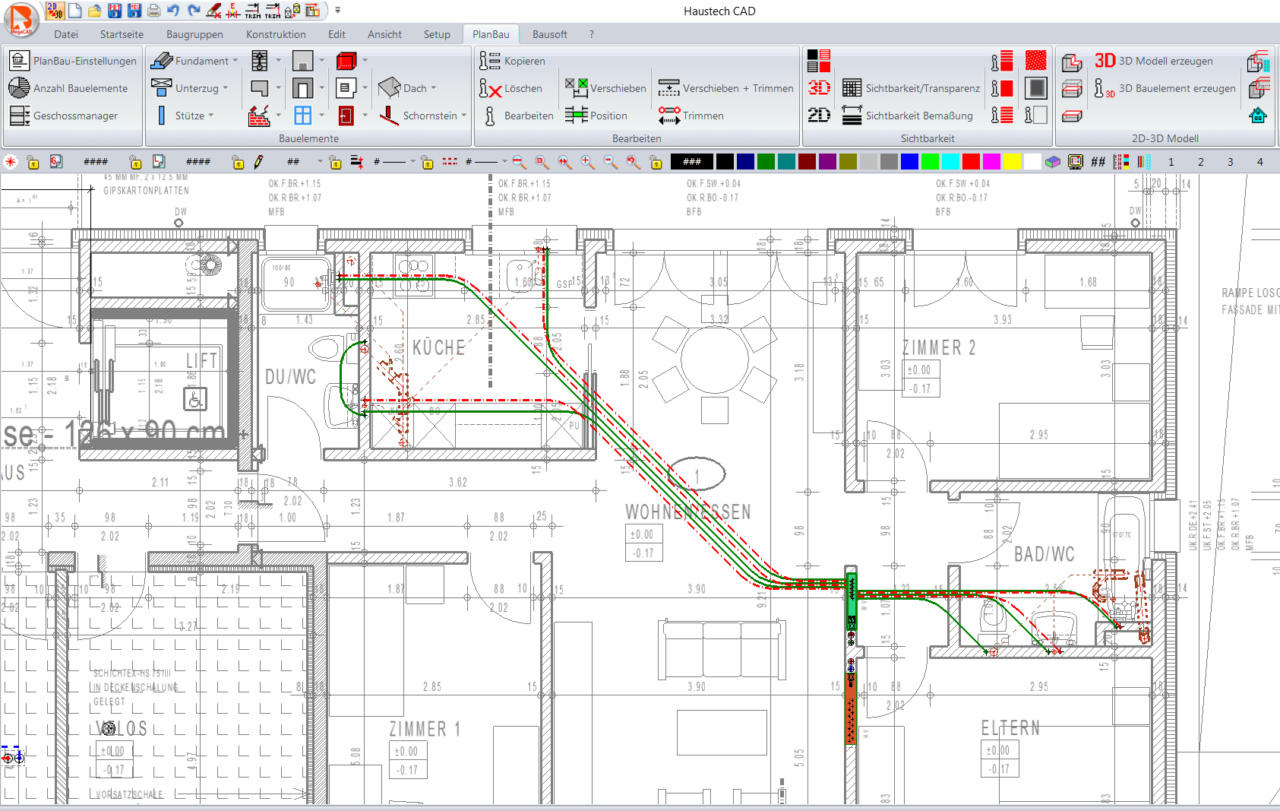
CAD-Trassenplanung
Deine Trassenplanung läuft mit diesem Modul wie am Schnürchen: Du legst klare Verläufe fest, arbeitest mit realistischen Abständen und Höhen, und kannst auch Befestigungspunkte einplanen. Selbst komplexe Technikräume werden so übersichtlich. Du sparst dir Doppelarbeit und bekommst eine Planung, die direkt umsetzbar ist.
CAD-Bodenheizung
Mit dem Modul für Bodenheizungen legst du Heizkreise schnell und genau – auch in Räumen mit vielen Ecken. Abstände, Schleifen, Verlegearten: alles kannst du anpassen, und das System übernimmt die Berechnung für dich. Am Ende bekommst du eine fertige Materialliste für den Einkauf. Damit bist du schnell, präzise und wirtschaftlich unterwegs.